2026.03.30
秩父市上野町中古住宅
秩父市上野町中古住宅です。
複合施設ウニクス秩父まで100mと好立地です!
古い家ですがおしゃれな洋館で手直しすれば住めます。
市内ではなかなか手に入らない土地92.68坪とお庭広々です。
2026.03.30
秩父市上野町中古住宅
秩父市上野町中古住宅です。
複合施設ウニクス秩父まで100mと好立地です!
古い家ですがおしゃれな洋館で手直しすれば住めます。
市内ではなかなか手に入らない土地92.68坪とお庭広々です。
| 販売価格 | 1,850万円 | ||
|---|---|---|---|
| 所在地 | 秩父市上野町29番11号 | ||
| 交通 | 秩父線お花畑駅徒歩8分 西武線西武秩父駅徒歩10分 | ||
| 地積 | 306.39㎡(92.68坪) | ||
| 地目 | 宅地 | 権利 | 所有権 |
| 建物 | 114.67㎡(34.68坪) | ||
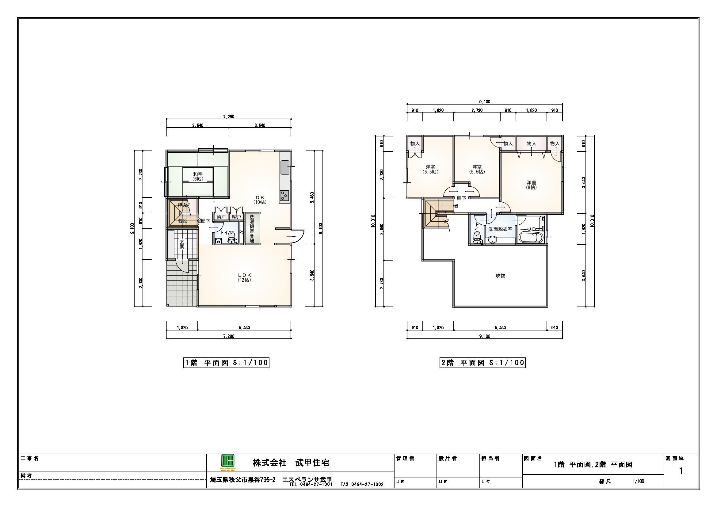
| 間取り | 4LDK | ||
| 構造 | 木造スレート葺2階建 | ||
| 築年数 | 昭和54年3月新築 | ||
| 都市計画 | 非線引き区域 | ||
| 用途地域 | 第一種住居地域 | ||
| 建ぺい率 | 60% | 容積率 | 200% |
| 設備 | 公営水道、本下水 | ||
| 現状 | 空き家 | 取引態様 | 媒介 |
| 周辺環境 | ウニクス秩父100m | ||
| 備考 | 現況有姿の売買となります。 | ||